Activities that initiate and sustain energy reduction are an important part of efargo’s community focused plan. Within the activities dashboard, you can learn about our urban game, sign-up to play, check out recent events, learn from our planned demonstration house, and check out our top ten energy saving actions to implement in your home.
catalogs
classes
event
gallery
habitat
passive
house
top ten
Blog
Support
Passive
Project
Blog
Gallery
Ian
Alex
Ian
Nick
Gretta
Josh
Nate
Dylan
Sean
Aaron
Week 18
▼ Design Build Will Return After
A Short Summer Break
Our spring semester has come to an end, but that doesn't mean we're done just yet. Stay tuned as we begin to build next fall!
After many weeks of hard work and determination we have reached the end of the semester with completed construction documents in hand! This week being our final week of the spring semester, we gave it one last push with our construction documents, wrapping up the design phase, and beginning to gear up for the build this coming fall.
A project like this only comes once in a lifetime, and we are all so grateful to have had the opportunity to be a part of it. Together as a team we have faced many challenges and hurdles along the way, but in the end we have learned more than we ever had before. In a rather short time frame, we have become experts on passive house principles, gained experience with city planning and re-zoning, increased our confidence with residential building construction, have become aware of what it’s like to design on a budget, and most importantly learned how to collaborate as a team. This has truly been a semester which we all will never forget!
Be sure to keep an eye out for new blog posts and pictures coming this fall as we document the build of the proposed design!
Week 17
▼ The Finishing Touches
Putting together the final touches on the houses and making the construction sets perfect before submitting.
Over the course of the week, the team has put together all the small details. As we near the end of our time in the design portion of design build, it is up to us to make sure everything we want is reflected in the plans. Dylan and Gretta have put together the final details behind the finishes in the interior and exterior of the house. This involves the gazing at tons of lights, cabinets, counter top finishes, exterior materials, and flooring. Through the course of many meetings with local supporters of Habitat, the homes' finishes and final details are finally coming together! Some of the biggest concerns are Low VOC's and saving money along the way. We have found that a little research goes a long way!
Week 16
▼ Joe Loves Passive House
After our successful Earth Day Event hosted at Ecce Gallery and Barry Hall in downtown Fargo, the Design+Build team switched gears to focusing their efforts on finalizing the construction documents.
The Earth Day Event at the Red River Zoo, Ecce Gallery, and Barry Hall showed the Design+Build Team that our design is really picking up traction. Many businesses, community leaders, and common folk have shown a great amount of interest in the work we're doing, including one of the future owners of the coming Passive Houses, whom got her first look at her future home.
After such an exciting week, we now switch over to adjusting and red-lining our construction documents, an important book of information to be given to Habitat for Humanity. The documents require a high degree of detail, and it has taken the whole team to tackle completing the set.
We did get a chance to present to Urban Learning Circle, a small group of people orchestrated by Joe Burgum. The team assembled for an early-morning presentation, where we first went over the principles of Passive design, and then displayed our designs in both plan and rendering. The Urban Circle also got a chance to see our mock-up wall types, showing physically just how a Passive Wall is put together.
Joe and his circle were excited about the prospect, claiming all houses should be built in such a manner. Building methods such as these could be implemented in the future, but traditional methods will be around for quite some time. But perhaps Passive building methods will be implemented sooner, if we can set a great example to the people of Fargo.
Week 15
▼ The Earth Day Way:
Community and Energy Efficiency
Energy learning exhibits and construction documents take the focus while we move forward with design development.
As the construction document process continues we also had to put some focus into preparing for a presentation that was held on April 23rd at ECCE art gallery located in Downtown Fargo. The purpose of this presentation was to inform the community about energy efficiency in their homes. In order to do that, we constructed three interactive demonstrations that dealt with site orientation, air tightness in buildings, and proper insulation. We also used the opportunity to show the progress we have made on our design and to receive some feedback on what people thought about the project. The event went great and there was an awesome turnout from the community. We want to say thank you to everyone who attended!
As far as the construction documents, we are still working on refining all of the details such as wall construction, roof/wall types and corners. These are still being worked out as well as understanding the pluming/HVAC layouts and details of the site plan. Constant red lining of the construction document set highlights the areas that need work and gets us closer to checking off the list of things that need to be completed. There is still a lot that needs to be done as we approach our deadline but we are hard at work and confident in finishing on time.
Week 14
▼ Putt Putt Publicize
As the work continues, we are lucky to get wonderful feedback from surrounding individuals.
As the construction design production for the design build continues, production for publicity for this project is starting to go haywire. Not only are we working on drawings now, we are also outreaching to infinity and beyond to what exactly Passive House is.
We held an event at NDSU this last week to spread the word, full of process drawings, models, virtual video footage, Google Cardboard renders, posters, and a few interactive games. These included Putt Putt, a mini golfing game using our 200+ models we constructed earlier in the semester during out Schematic Design phase. The game turned out pretty sweet.
We had the opportunity to present to the NDSU’s Board of Architecture Department. This included 30+ individuals, professionals and students, working in various locations tied back to the school in some way. We saw different reactions from the various individuals regarding our project. The last presentation we were lucky to give was to Dan Rockwell, a highly trained professional in energy efficient design who has built many passive homes himself. For us, we were extremely grateful to have his and the Board’s presence and the feedback. “The only thing to do with good advice is to pass it on. It is never of any use to oneself.” -Oscar Wilde
It seems every time we present to the client, random guests that walk by, and/or many other people we always get advice to make this project better and better. Thank you!
Week 13
▼ It's Showtime
A week of hard work paid off with presentations to the NDSU Alumni Board, Dan Rockhill, and other guests in Renaissance Hall.
This week culminated in an all day Passive Learn and Play event on Friday consisting of presentations, education, fundraising, games, and cookies all related to our Design/Build studio. Located in Renaissance Hall, we were able to pack the first floor lobby with Design/Build work. Scores of models and drawings showcased our iterative design process, while renderings, final models, a walk-through video, and virtual reality through Google Cardboard presented our final design. During open house hours, we invited attendees to play mini-golf, navigating through our process models to reach the goal. Additionally, people had the opportunity to sponsor the project through the purchase of custom T-shirts, mugs, cookies, or any of the aspects of the Passive House that still require funding, such as solar panels, trees, or a shading device. The open house was punctuated by presentations to the NDSU Alumni Board and guest speaker, Dan Rockhill. Despite a full day of meetings, the Alumni Board was very attentive and receptive to the project, offering support following the presentation. Dan Rockhill, of Studio 804 in Kansas, was able to bestow knowledge and wisdom from years of Design/Build experience, engaging our studio in conversations regarding everything from design agenda to foundation details. Inevitably, the event encountered surprises, from an eager group of home-school students touring the building to a delay in Dan Rockhill's flight, but the Passive Learn and Play was a great success. We appreciate everyone who joined us for the event!
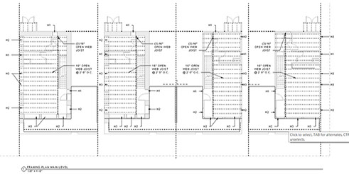
Work on the Design Development drawings continued and intensified this week as we worked toward submitting the drawing set. The Design Development drawing set requires increased detail in order to be priced by our contractor. Through multiple sets of corrections and red-lines, the project has become more and more refined, turning into a clear set, including a site plan, framing plan, floor plans, wall sections, and elevations. As we move forward, we will continue to work on energy modeling, refining details, and materials and product specification.
Week 12
▼ Drawn Together: Design Development
Design Development is under way! PUD Plat is now under review and the drawings are coming together
As part of the Design Development process, we all came together to create the large list of drawings that be needed to make a final drawing set. Many of these drawings will be pulled into final construction document drawings. It is very exciting to witness the hard work transform into a more finalized project. The details of this project are becoming fully realized to fit the Habitat goals and cater to the City of Fargo. After spending so much time becoming accustomed to the passive house standards we've all become fascinated with the fine details that make it work.
Wall details and materials are a bigger part of the process currently, with an emphasis on build-ability. Many of the design decisions are center on making this project a feasible volunteer opportunity. We are also working hard to accomplish Passive House certification through energy modeling. The design build studio is analyzing solar panels and window placements to ensure a healthy thermal environment for the future occupants.Providing the proper thermal barrier in our cold Fargo climate is a challenge, but we have come up with unique solutions to wall and roof constructions.
On April 8th we will present to the NDSU Alumni Board on the status of our project. We invite anyone interested to come and see what's brewing at NDSU's Architecture Program!
Week 11
▼ Post-Break Breakdown: Organizing tasks
and teams for Design Documentation
Following Spring Break, our studio has moved into Design Development and is preparing for upcoming presentations and exhibitions to show our progress.
The week of the 21st was a very big week for our studio. After returning from Spring Break, we came together to organize the coming weeks as we shifted from schematic design to design development, and approached our big fundraising day. Tasks on our work list ranged from foundation design to selecting plumbing fixtures, giving everyone an opportunity to work together and work on tasks throughout each aspect of the building design process.
On April 8th, the board of alumni visits the school for the annual Beaux Arts Gala. Their day is full of meetings and presentations on the current happenings at NDSU, and our Design+Build studio has been given a great opportunity to show them everything we’re capable of. Their visit along with the Beaux Arts Gala later that night mean heavy traffic in Renaissance Hall, so we’re preparing exhibits and activities to educate visitors and other students in the building on our process, Passive House, and on working with Habitat for Humanity.
We also resubmitted our PUD application. After the first submission, we realized by rearranging a few elements we were able to create a more even, more generous floor plan for each of the homes in both phases of the project.
Week 10
▼ Over the hurdle and into the mud
After submitting the PUD and PLAT we are now moving into the Design Development stages of the project where we will continue our detailing with a single design.
This week we submitted the necessary documents to continue with the project. This was a huge milestone for the project as we now move from the Schematic Design phase to the Design Development stage. After these documents are finalized our building footprints, setbacks and density are all locked into place.
Over Spring Break we broke into a program called WUFI Passive. This is a energy modeling software and can be found here. This program goes in deep with highly inclusive data input to give us results on how we are doing in our pursuit of reaching the goal of the first Passive Certified house in North Dakota. Over the coming weeks we have a lot to finalize from intricate details, to facade types, to foundation placements. We are in the thick of this design and we as a class are pushing forward to make this build a reality.
Cable... That works good for pulling down old rickety barns!
Had to get rid of those pesky power lines. Yep... a gun would work!
Glory shot of that beautiful barn wood!
Man that was a lot of wood!
Man that's a lot of nails!
Ian going hard on those window details! Yeah!
Last push!!!
Selfy time!!!
We made it!!!
Studio space
In the zone!
<
>
Week 18
I think we accumulated a little too much stuff... We are not horders!
Chipping away.
As we come to an end, we reflect on what we've accomplished
Working hard for the final push!
Burning the midnight oil! Again...
One of the greatest studio culture builders. Really good coffee
Part of the team that has made this possible! Alex/Nate
This printer is so dang slow!!!
Man... We have a lot of samples of stuff!
Yeah... We got this.
Aaaaannnd more process!!!
Too many printed Construction Documents...
Trying to go through everything!
View from the drivers seat. Love that screen glare!
Ohhh yeah. Forgot we made all those
It's always good to have a little destroying things in our daily routine
<
>
Week 17
Discussing the design (© Grace Braaksma)
I think she's almost got it! (© Grace Braaksma)
Future Architects here (© Grace Braaksma)
Alex going through some model, site and context (© Grace Braaksma)
Yaaaay lots of people!
Nate kicking butt with his doodles! #waste-a-watt
<
>
WATTS, WATER, WASTE, & WHEELS
#teamwork
Yeah... We talk a lot as a group. :)
<
>
Week 14
Checking out the Virtual Reality (VR) goggles
Cookies, Giving tree/truss, T-shirts, mugs. What more could you need!?
Kick-en butt and taking names in mini put-put
Our Freedom By Design friends chillin with us
Our very own Nick showing off some giving tree/truss tags
Bertolini pulling out his dance moves!
dB presenting to the NDSU Alumni Board. You got this Gretta!
Ian being bold! Wahoo! Good think he's so darn brilliant
Nick is just being a stud... That's all I have to say.
Sitting down and talking with Dan Rockwell
<
>
Design Build Lunch & Learn
Mix together time, context and brilliant minds. And you get this!
Professor Malini's first look though the virtual reality goggles!
All the way from 1ft=1ft to...
1in=8ft
Air nailers are nice :)
Josh Cranking out the mini put, put course!
A little bit of flashing makes everything better :) So do cookies.
Cutting diagonally across corrugated steel is harder than you'd think!
Sneak peak of the put-put course going to be at our April 8th event!
Dylan... Virtual reality isn't real, you can't open the window...
Ever seen a ton of iterations all in one place. Well you have now...
<
>
Week 13
Group working out some kinks
Talking through some details
Trying to pull of the old tape here we go!
Still peeling off the old tape... Man that sucked.
Copious amounts of tape
Josh figuring out the plan for taping
Taping out the second floor
<
>
Week 12
Deep concentration
That Design Build 2016 Mug though!
Yeah... The teamwork pretty well together
Ingenious!
Sean going hard!
Checking out a sweet fold-able foldable pamphlet idea!
...focus...
The usual...
Oh my... is that the evil Dr. Wastawatt I see on that screen! Get him!
Dylan sure must have something to say
<
>
Week 11
Week 10 (SPRING BREAK)
Hmmmm... What are we looking at? I don't know either.
Is that Stanley our conveniently placed cutout friend?
There must me something Malini likes in this model
Yep... We're thinkin' about something.
<
>
Week 9
Nice Workstation...
Ya know... There are perks to spending every waking hour in studio.
Yep, today is a beautiful day.... and better spend outside! C'est la vie
<
>
Week 8
Yep, Ian had coffee today
The master at work
#problemsolving
Tricky, tricky. Lot's of unknowns
There must be something important about that.
Alright! Doing work at the site! Go Ian!
<
>
Week 7
Don't disturb the Dylan... He seems really focused.
Oh the intricacy of wall details
If you are looking for something you lost. Look under a piece of paper.
Well, check that one off the list. Only about 57 more to go...
Deep, deep thought.
Yep Ian... You're right. You definitely look like a floating head
This must be really important
<
>
Week 6
Yeeeaaaah, we made a few models.
Department chair of Architecture sitting in on one of our presentations
Executive Director of Habitat for Humanity responding to our ideas
Some more discussion
Mauris sit amet tortor.5
Models of the 6 ideas
Models of the 6 ideas2
Models of the 6 ideas3
Models of the 6 ideas4
<
>
Week 5
A sprinkle of gesturing
A touch of sketching
And a dash of trace paper
<
>
Week 4
Look here to see what Design Build 2016 is up to. This Blog will keep you up to date with how the project is coming along!
Support
Habitat for Humanity
Habitat's Vision
"A world where everyone has a decent place to live."
Habitat's Mission
"Seeking to put God’s love into action, Habitat for Humanity brings people together to build homes, communities and hope."
Habitat's Vision
"A world where everyone has a decent place to live."
About Lake Agassiz Habitat for Humanity
Lake Agassiz Habitat for Humanity (LAHFH) is part of a global, nonprofit housing organization operated on Christian principles that seeks to put God’s love into action by building homes, communities and hope. LAHFH is dedicated to eliminating substandard housing locally and worldwide through constructing, rehabilitating and preserving homes; by advocating for fair and just housing policies; and by providing training and access to resources to help families improve their shelter conditions. Habitat for Humanity was founded on the conviction that every man, woman and child should have a simple, durable place to live in dignity and safety, and that decent shelter in decent communities should be a matter of conscience and action for all. We partner with local businesses, churches and volunteers to help build homes with qualifying families. Volunteers provide most of the labor, and individual and corporate donors provide money and materials to build Habitat houses. Most importantly, partner families play a large role in the building of the home. They invest 250 hours of labor - "sweat equity" - into building their homes and the homes of others. They also make interest-free mortgage payments which go into a fund that is used to build more houses.
With the generous support of donors and volunteers LAHFH has made a lasting and meaningful impact in our community by helping local families realize their dreams of home-ownership and furthering Habitat’s goal of simple, decent and affordable housing.
All are welcome
Habitat for Humanity (Name) has an open-door policy: All who believe that everyone needs a decent, affordable place to live are welcome to help with the work, regardless of race, religion, age, gender, political views or any of the other distinctions that too often divide people. In short, Habitat welcomes volunteers and supporters from all backgrounds and also serves people in need of decent housing regardless of race or religion. As a matter of policy, Habitat for Humanity International and its affiliated organizations do not proselytize. This means that Habitat will not offer assistance on the expressed or implied condition that people must either adhere to or convert to a particular faith, or listen and respond to messaging designed to induce conversion to a particular faith.
About Habitat for Humanity International
Founded in Americus, Georgia, USA, in 1976, Habitat for Humanity today operates around the globe and has helped build, renovate and repair more than 600,000 decent, affordable houses sheltering more than 3 million people worldwide.
Orders have now been taken, so get excited for your DB Gear!
11 oz Mug Design Build Mug
$10/mug
Download order form here
Design Build T-shirt
$15/shirt
S
M
L
XL
Download order form here
Passive
ENERGY
Energy Efficient|
"Passive building is the best path to Net Zero and Net Positive buildings because it minimizes the load that renewables are required to provide." -PHIUS
Because of the efficiency of these buildings it is very easy to use renewable energy sources in small quantities to create a Net Zero home if not a Net Positive Home.
°F
Thermal Comfort|
"Superinsulation and airtight construction provides unmatched comfort and even in extreme conditions." -PHIUS
Because of the way these buildings are constructed there is little heat loss and any change in temperature outside or inside can quickly be handled by the mechanical systems.

Mechanical Systems|
"Continuous mechanical ventilation of fresh filtered air assures superb air quality." -PHIUS
These air systems typically are a continuous ventilation system which means that the system doesn't turn on and off. Instead it continually circulates air and uses other systems like a heat exchange in order to make a very efficient system.
TYPOLOGY
Building Type|
"Passive building principles can be applied to all building typologies--from single-family homes to apartment building to offices and skyscrapers." -PHIUS
Since Passive Buildings are more of a performance based set of criteria there is no specific requirement for any building typology making it possible for a great variety of projects.
"Passive building cuts energy consumption by 60-80 percent compared to code buildings. Certified passive buildings provide superior comfort, indoor air quality, and resilience."
Start Here
This is the Passive House interactive Dashboard!
Above is a series of different buttons that help to understand the different components that make a Passive House a passive house. Click around and discover what this building is really made of!
SOLAR SHADING
Properly regulate solar gain
–Warmth is welcome on a cold winter day but can be problematic during a summer day
Help sustain the balance point temperature in buildings
NATURAL VENTILATION
Properly regulate solar gain
–Warmth is welcome on a cold winter day but can be problematic during a summer day
Help sustain the balance point temperature in buildings
PHOTOVOLTAIC POWER
Generated from sun’s energy
–Electronic process
–Relies on semiconductors that are ionized by the sun’s ray
-creates usable electricity
SOLAR WATER HEATER
Characteristics
-Dark casing enclosing tubes of the water itself or chemicals are heated by the sun and can be used as domestic hot water in a house.
DRAINAGE & WATER MANAGEMENT
Curtain Drains
–Trenches placed around building perimeter
–Help direct water to harmless site area
–Made up of perforated drainage pipes and permeable materials
–Collect and guide water away from vital areas
Below-Grade Flashing
–Sheet of plastic is placed down foundation wall
–Slopes water away
–Guides surface water away from proximity of foundation walls
–Creates a virtual “in-ground gutter” or “foundation flashing”
ORIENTED DESIGN
Limit surface area on the North face
–Coldest and least efficient building face
–Most insulation
South face
–Should be prominent
–Most utilized face
–Most sunlight throughout the day
–Windows that utilize sunlight for both natural lighting and heating
Utilize all the site’s natural energy
–Southern exposure: help maximize solar thermal heat gain
–Northern exposure: large amounts of cold winds and least amount of daylighting
Energy savings from 10%-40%
WIND POWER
Collecting wind through large blades
–Transform wind into mechanical energy and then into electricity
–Rotating blades cause an internal shaft to spin
–Process is connected to a generator that creates the energy
GEOTHERMAL ENERGY
Harnessing naturally occurring heat
–Aid in operation of heating and cooling
–Clean and sustainable process
–Similar to a heat pump
–Relies on Earth’s core
Winter
–Heat is collected from the Earth’s energy and pumped into the building
Summer
–Heat is collected from the building and circulated back into the Earth
COMPACT DESIGN
Relationship between surface area and interior volume
–Tremendous impact on heating
–Greater surface area requires more insulation in construction
THERMAL BRIDGING
Thermal bridging occurs when an area of the building envelope has higher heat transfer than other areas.
This can be caused by some of the following:
-Fasteners
-Decks
-Structural members
-inattention to envelope details
-areas that run through the thickness of an envelope
-Materials with poor insulation properties
-Stud walls
http://www.buildmagazine.org.nz/articles/show/aggravated-thermal-bridging/
https://phnw.memberclicks.net/assets/Conference15Presentations/toward%20natural%20enclosures%20-%20ken%20levenson%20-%20phnw6.pdf
http://www.xtratherm.com/technical-information/thermalbridging
SUPER-INSULATION
Exceptionally well insulated building envelopes
–Reduces heat loss
–Reduces need for additional air
–Mechanical heating can sometimes be reduced altogether by retaining heat generated by source use
–Occupants, cooking, electronics, etc.
Careful in designing wall corners, openings, or attachments to the building
–to avoid gaps in insulation
–air leakage
–thermal bridging
–Can be sealed with efficient door and windows within effective insulation and mechanisms
R-Value for Fargo Climate:
–Code Exterior Walls: R21
–Code Roof: > R30
–Code Slab: R10
–WaldseeBiohausExterior Walls: R70
–WaldseeBiohausRoof: R100
–WaldseeBiohausSlab: R55
Glazing:
In Fargo's climate:
Maximize: Southern expose for maximum heat gain
Minimize: North glazing because of cold winter winds
Add appropriate shading to shade south glazing to control heat gain
Pros:
More natural light
Less need for artificial light/energy
Views
Opportunity for natural ventilation
Cons:
Lower R-Value
$$$
More detailing
http://www.yorktradewindows.co.uk/triple_glazed.htm
AIRTIGHTNESS
Reduce leakage and infiltration of unconditioned air
Less impacted by changing air temperature from leaks in the building envelope
–Cold infiltrating during the winter is lowered
–Already heated air escaping is lowered
–Reduction of need for heating
Maximum number of air changes:
–In code 2009: < 7 ACH50
–In code 2012: < 3 ACH50
–Standards: .6 ACH50
–WaldseeBiohaus: 0.18 ACH50
http://www.huberwood.com/zipsystem/home-zip-system
Project
▼ Week 18 (May 9-13) ▼

▼ Week 17 (May 2-8) ▼
Process







Production

▼ Week 16 (April 25-May 1st) ▼
Process





Production

▼ Week 15 (April 18-24) ▼
Process













Production







▼ Week 14 (April 11-17) ▼
Process










-crop-u73344.jpg?crc=328697081)
Production

▼ Week 13 (April 4-10) ▼
Process




-1-crop-u73433.jpg?crc=417391160)
-1-crop-u73438.jpg?crc=4268443872)



Production




-crop-u73465.jpg?crc=4119014701)





▼ Week 12 (March 28-April 3) ▼
▼ Process ▼



Although we were able to tape out the floor plan we the tape ended up not being up to par... As in we had to tear it all off and redo it. C'est la vie

This tape seemed to work a bit better.
How do we get a covered carport to not be so dark and enclosed?
How do we resolve the details?

Not meeting some requirements in WUFI

What happens when shared Revit file across all our computers gets messed up.
▼ Production ▼

Full scale mock ups? I think yes!

Resolved many of the details in the building

After all that tape we peeled off, we were able to make a soccer ball!
#ReuseRecycle
▼ Previous Weeks ▼
Iteration upon Iteration


















14 - 18
<
>
Click here to see our current events

No upcoming events at this time
Previous Events
Urban Learning Circle: Passiv Haus design and D+B Project
April 26th, 2016. 7am

